Jak już wcześniej pisałam, osoby bardzo mi bliskie planują wybudowanie domu.
W związku z tym jestem żywo zainteresowana tym ważnym, dla naszej rodziny, tematem.
Przyjemności z posiadania własnego domu trudno sobie odmówić,
więc warto podjąć ten niewątpliwy trud.
Wypoczynek po ciężkim dniu pracy należy się nam wszystkim,
a jeśli będziemy mogli spędzić ten czas we własnym ogrodzie,
to mamy szansę osiągnąć pełnię szczęścia.
Konieczne jest wtedy zagospodarowanie terenu wokół domu.
Znalazłam świetną propozycję, którą chcę się teraz podzielić z moimi czytelnikami.
Czyż taki kącik wypoczynkowy z grillem nie jest piękny?
Elegancja, prostota i funkcjonalność.
Czyż taki kącik wypoczynkowy z grillem nie jest piękny?
Elegancja, prostota i funkcjonalność.
![]() |
| Grill ogrodowy GR-01 KRH1275 - źródło: extradom.pl |
Co zrobiłabym, gdybym wybierała nowy dom dla swojej rodziny?
Trzeba byłoby podjąć zdecydowane kroki i podejść do tematu dogłębnie analitycznie
i dokładnie przemyśleć wszelkie aspekty.
Własne gniazdo budujemy najczęściej 1 raz w życiu,
potem je ulepszamy, inwestując w remonty.
Według mnie najlepsze są projekty domów o prostej i klasycznej bryle.
Stosunkowo łatwo wtedy dobrać tynk na elewację.
Wzbogacić ją można kamieniem, czy też drewnem.
Wtedy nasza budowla nabierze oryginalnego charakteru.
Architekturę domu poprawi również
właściwie zakomponowana zieleń w postaci drzew, krzewów, traw i kwiatów.
Dodatkowo należy się zastanowić
w jaki dom jesteśmy w stanie zainwestować,
mając na uwadze wydatki związane nie tylko z jego wybudowaniem,
ale też z późniejszym utrzymaniem.
Powiedziałabym, że jest to sprawa zasadnicza
przy wyborze odpowiedniego projektu.
Chodzi o stworzenie symulacji
związanej z opłatami za ogrzewanie, wodę, energię elektryczną, czy też gaz.
Do tego dochodzą koszty utrzymania budynku,
czyli malowanie elewacji, wnętrza domu oraz utrzymanie dachu w dobrej kondycji,
jak również ewentualna wymiana w przyszłości sprzętów i instalacji.
Podkreśliłam "symulacji", bo nie jesteśmy w stanie dokładnie przewidzieć
kosztów utrzymania domu,
ale nasza wyobraźnia musi być bardzo wyostrzona,
by nie wpaść w dziurę budżetową na własnym podwórku.
Duże powierzchnie generują większe wydatki.
Samo postawienie ścian i pokrycie ich dachem
to dopiero początek inwestycji.
Trzeba pomyśleć o wyposażeniu domu we wszelkiego
rodzaju instalacje, sprzęt agd, meble etc.
Powierzchnia, a co za tym idzie również kubatura to dodatkowe wyznaczniki kosztów.
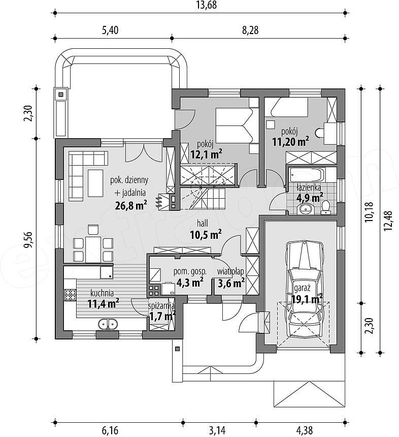
Na poniższych zdjęciach prezentuję dom,
który spełnia warunki prostoty z jednoczesną elegancją formy.
Wykończenie elewacji zadaje szyku całości.
Zasadniczą zaletą budynku jest to, że pomieszczenia zaplanowano na parterze.
Zagospodarowanie przestrzeni na jednym poziomie bardzo ułatwia codzienne życie.
Wszystko jest praktycznie na wyciągnięcie ręki.
Prezentowany projekt zakłada miejsce na strych. To rozwiązanie również mi się podoba.
W razie potrzeby będzie można i to miejsce zamienić na część użytkową domu.
Na poniższych zdjęciach prezentuję dom,
który spełnia warunki prostoty z jednoczesną elegancją formy.
Wykończenie elewacji zadaje szyku całości.
Zasadniczą zaletą budynku jest to, że pomieszczenia zaplanowano na parterze.
Zagospodarowanie przestrzeni na jednym poziomie bardzo ułatwia codzienne życie.
Wszystko jest praktycznie na wyciągnięcie ręki.
Prezentowany projekt zakłada miejsce na strych. To rozwiązanie również mi się podoba.
W razie potrzeby będzie można i to miejsce zamienić na część użytkową domu.
Układ wnętrza przewiduje możliwość adaptacji poddasza,
gdzie w przyszłości można wydzielić dodatkową łazienkę oraz dwa pokoje,
jak również opcję przeznaczenia jednego z pomieszczeń
np. na suszenie prania w zimie, a latem ziół.
np. na suszenie prania w zimie, a latem ziół.
Taka propozycja wydaje się być szczególnie ciekawa dla młodej rodziny,
która planuje w przyszłości jej powiększenie.
Dzięki temu poddasze może służyć jako strefa dla dzieci,
a pokoje na dole jako sypialnia dla rodziców oraz gabinet lub pokój gościnny.
Poza tym budowa może zostać wtedy podzielona na 2 etapy –
1. wykończenie parteru, 2. wykończenie poddasza.
![]() |
| Projekt domu Agaton Multi-Comfort - źródło: extradom.pl |
![]() |
| Projekt domu Agaton Multi-Comfort - źródło: extradom.pl |
![]() |
| Projekt domu Agaton Multi-Comfort - źródło: extradom.pl |
![]() |
| Projekt domu Agaton Multi-Comfort - źródło: extradom.pl |
Przy takim domu i w pięknym ogrodzie można wspaniale wypoczywać.
Pozdrawiam cieplutko :)
Pa, pa :)
Pozdrawiam cieplutko :)
Pa, pa :)









Projekt naprawdę wygląda ciekawie :)
OdpowiedzUsuńRzeczywiście, piękny jak marzenie...
OdpowiedzUsuńDomek w kolorze sweterku Stasia :)
OdpowiedzUsuńRaj na ziemi :)
OdpowiedzUsuńŚlicznie napisany tekst, z ogromną ciekawością go czytałam!
OdpowiedzUsuńZapowiada się bardzo pięknie. Domek jak marzenie!Przed wejściem bardzo piękne miejsce na wygodne stanowisko druciarskie! Pozdrawiam serdecznie!
OdpowiedzUsuńProjekt bardzo fajny. Dla mnie idealny :)
OdpowiedzUsuńmarzenia się spełniają!
OdpowiedzUsuńOdpoczynek we własnym ogrodzie to najlepsze co może człowieka spotkać po pracy. Ja uwielbiam spędzać czas w moim ogrodzie i się nim zajmować do tego stopnia, że ostatnio postanowiłam zainwestować i kupić zbiornik na deszczówkę, żeby moje roślinki były jeszcze bardziej szczęśliwe.
OdpowiedzUsuńPrzepiękny dom :) Idealne miejsce do relaksu oraz odpoczynku. U mnie w domu ostatnio duże zmiany postanowiliśmy zainwestować we własną elektrownię wiatrową. Niezbędne było wynająć firmę, która świadczy usługi dźwigowe. Taka elektrownia posiada wiele ciężkich elementów i tylko dźwig sobie z nimi poradzi.
OdpowiedzUsuńDuży zielony ogród to moje marzenie <3 Teraz najważniejsze dla mnie jest skończyć budowę domu. Aktualnie na ściany natryskiwany jest polimocznik, czyli dodatkowa warstwa ochronna. Polecam wszystkim właśnie w taki sposób zabezpieczać swoje mury.
OdpowiedzUsuńPięknie to wszystko wygląda! :) My właśnie skończyliśmy budowę naszego domku i mamy piękny ogród. Zdecydowaliśmy się też na montaż monitoringu u nas w Koszalinie. W ten sposób możemy mieć wszystko pod kontrolą. :)
OdpowiedzUsuńBardzo interesujące. Pozdrawiam serdecznie.
OdpowiedzUsuńBardzo fajny wpis. Pozdrawiam.
OdpowiedzUsuńPrzepiękny domek! Włąsny dom z ogrodem to spełnienie marzeń wielu osób. Można powiedzieć, że ja również zyskałam nowy dom, ponieważ dokonaliśmy solidnego remontu z powodu zalania. Wcześniej jednak należało się dowiedzieć jak pozbyć się wilgoci z domu.
OdpowiedzUsuń